Residence Villa Seven

im Zentrum von Torri del Benaco, Gardasee

Auf einem Privatgrundstück von ca. 1000 m² Fläche entstehen aus dem bestehenden Gebäude nach gründlichen Um- und Neubauarbeiten sechs Wohneinheiten und eine Penthouse-Wohnung in der 3. Etage. Die Nettowohnfläche der Wohnungen liegt zw. 60 bis 75 m².
Zu jeder Wohnung gehört ein Keller und ein Autoabstellplatz. Im Außenbereich des Grundstückes befindet sich in natürlicher Umgebung ein Pool.

Die Wohnung Nr. 4 und 6 sind noch zu verkaufen. Die Wohnungen befinden sich im 1. bzw. im 2. Obergeschoss.

 

Villa Seven - Torri del Benaco, Gardasee
Villa Seven - Wohnung in Torri del Benaco
Villa Seven - Wohnung am Gardasee kaufen
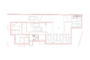
Grundriss der Wohnung Nr. 3-6 im 1. und 2. Obergeschoss
Grundriss der Garagen und Keller